Amts- und Bürogebäude, Tulln, Studie

Projektdaten

Projekt-Art:

Potentialanalyse I Dach- und Fassadensanierung I Begrünung I Zubau

Auftraggeberin:

BIG im Auftrag der ARE Austrian Real Estate

Planung:

RATAPLAN - Architektur ZT GmbH

Begrünung:

green4cities

Haustechnik:

Vasko & Partner

Statik:

IGP - Ziviltechniker GmbH

Gemeinsam mit:

Laura Lipensky

Planungsbeginn:

03/2021

Fertigstellung:

08/2021

Nettonutzfläche:

5.500 m²

NFL Garage:

393 m²

Projektbeschreibung

Projektbeschreibung
Im Auftrag der ARE (Austrian Real Estate) wurde eine Potentialanalyse für die Sanierung der Gebäudehülle eines Amtsgebäudes aus den 1970er Jahren erstellt. Ausgangslage ist die bald bevorstehende und notwendige Sanierung des Daches. Ziel ist ein klimaresilientes Haus, das energieeffizient durch die Jahreszeiten kommt und seinen Beitrag zum Mikroklima der Umgebung leistet. Zusätzlich werden die Potentiale für Zu- und Ausbau erhoben. Herausforderungen bilden dabei die behördlichen Schritte im Zuge einer Grundstückszusammenlegung, die geltende Altstadtverordnung, die bauphysikalischen Details für die Sanierung der vorgehängten Betonfertigteilfassade, sowie die Sanierung im laufenden Betrieb. Es entstehen 6 Varianten, die sich über die notwendigen Maßnahmen der Hüllensanierung bis hin zu unterschiedlichen Ausbaustufen erstrecken. Darüber hinaus werden alle Fassaden hinsichtlich ihres Charakters, Funktion und Begebenheiten analysiert, um die Potentiale für Vertikalbegrünungen auszuloten und Empfehlungen abzugeben.

 

Analyse
Potenziell können etwa 1400 m² zusätzliche Nutzfläche generiert werden. Es wird ein Zu- und Dachausbau mit Wohnnutzung empfohlen, der separat erschlossen wird und somit unabhängig vom Bürohaus funktioniert. Die Dachflächen sollen als Solargründach ausgeführt werden, um die Flächen zur Energieproduktion und gleichzeitig zur Retention und Förderung der Biodiversität zu nutzen. Fassadenbegrünung wird bevorzugt im Süden und Westen angedacht. Hier ist die Sonneneinstrahlung am stärksten. Darüber hinaus sind diese Seiten der Stadt zugewandt und haben daher den größten Effekt auf das Mikroklima und das Wohlbefinden der Passanten.

 

Konzept
In einer ersten Phase werden unterschiedliche Möglichkeiten zu den Aufgabenstellungen recherchiert und aufgezeigt. In einer zweiten Phase werden zwei Varianten ausgearbeitet und vorgestellt. Variante 1 beschreibt dabei einen Dachausbau in Kombination mit Fassadenbegrünungen an den Seiten West, West-Nord und Süd. Jene Richtungen, die sich nach dem Nibelungenplatz und der Stadt hin orientieren. In dieser Variante bleibt das Garagengebäude lt. Bestand bestehen. Die 2. Variante schlägt einen Zubau im Norden vor, der als vermietbarer „Wohnturm“ oder auch als zusätzliche Büroflächen genutzt werden kann. Hierzu wird auch eine Begrünung an den Fassaden der Nord- und Ostseite mitgedacht. Die Parkplätze bleiben weitgehend erhalten.

 

Variante 1
An der Albrechtgasse und zum Nibelungenplatz wird die Fassadensanierung mit einer Begrünung ergänzt. Die unteren Geschoße bodengebunden, die oberen mit Pflanztrögen. Der Dachstuhl wird entfernt und das Dachgeschoß mit einem Staffelgeschoß ausgebaut.  Das Garagengebäude bleibt erhalten und erfordert eine gestalterische Reaktion auf den zukünftig als Aufenthaltsort gestalteten Nibelungenplatz. Es entstehen etwa 481 m2 BGF, die als zusätzlich vermietbare Büroräume genutzt werden können. Der schmale Südtrakt wird als Solargründach ausgeführt. Es kann durch den angrenzenden Raum oder einer eingebetteten Terrasse sichtbar gemacht und inszeniert werden.

 

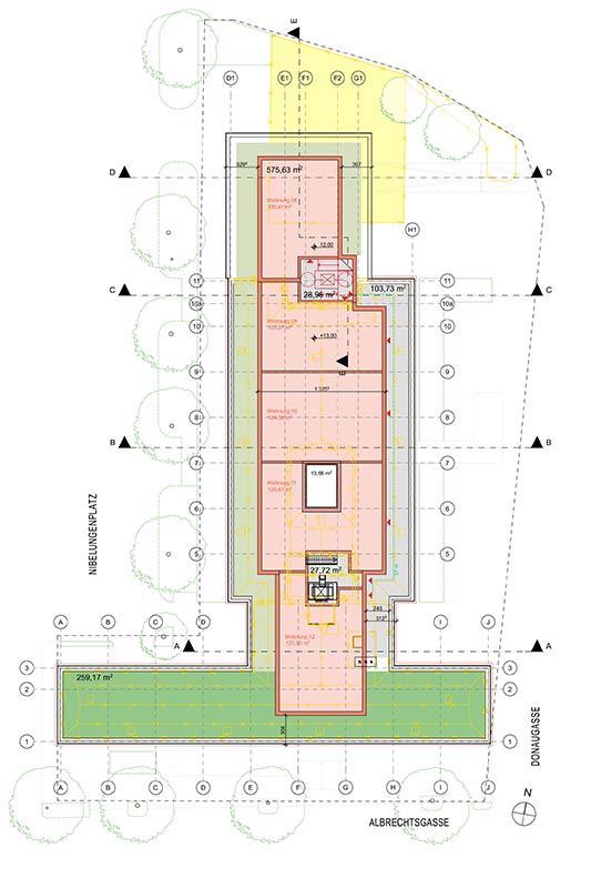
Variante 2
Das bestehende Garagengebäude wird abgerissen und durch eine Tiefgarage im Zubau ersetzt. Dies führt zu einem ruhigeren Stadtbild, einer Reduktion der versiegelten Fläche und Befreiung des wertvollen oberirdischen Raums von Autos. Das Dachgeschoß zieht sich vom Bestand über den Zubau als Staffelgeschoß; das Solargründach ist am südlichen Trakt angedacht. Für die Nutzung des Zubaus eignen sich Wohnungen mit Wohnungsgrößen von 70-100 m2 am besten. Den Balkonen oder Loggien der jeweiligen Wohneinheiten wird eine Fassadenbegrünung durch Tröge empfohlen. Dem Zubau wird eine bodengebundene Begrünung an der Ostseite für die Fassadenfläche des Erdgeschoßes angedacht.

©RATAPLAN
©RATAPLAN
©RATAPLAN
©RATAPLAN
©RATAPLAN
©RATAPLAN
©RATAPLAN
©RATAPLAN
©RATAPLAN